Neuf T2 avec balcon, parking et casier à skis, idéal pour 4 personnes - FR-1-291-1021

Residência
Preço não disponível
Sobre isso
Neuf T2 avec balcon, parking et casier à skis, idéal pour 4 personnes - FR-1-291-1021 encontra-se em Valmorel, apenas a 36 km de Halle Olympique d'Albertville e 41 km de Col de la Madeleine.
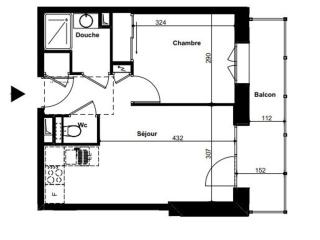
Este apartamento tem 1 quarto, uma sala de estar, uma cozinha totalmente equipada com frigorífico e máquina de café, e 1 casa de banho com chuveiro. Fornecendo estacionamento privado gratuito, este apartamento de 4 estrelas também dispõe de acesso Wi-Fi gratuito em toda a propriedade.
O Aeroporto de Chambéry - Savoie fica a 94 km de distância.
Vantagens
Conexão Wi-Fi à rede local
Estacionamento gratuito
Estacionamento
Estacionamento no local
Estacionamento privativo
Localização
Résidence LE ROC73260 Valmorel
Reservar
Datas da sua estadia
Disponibilidade com
--------------------------